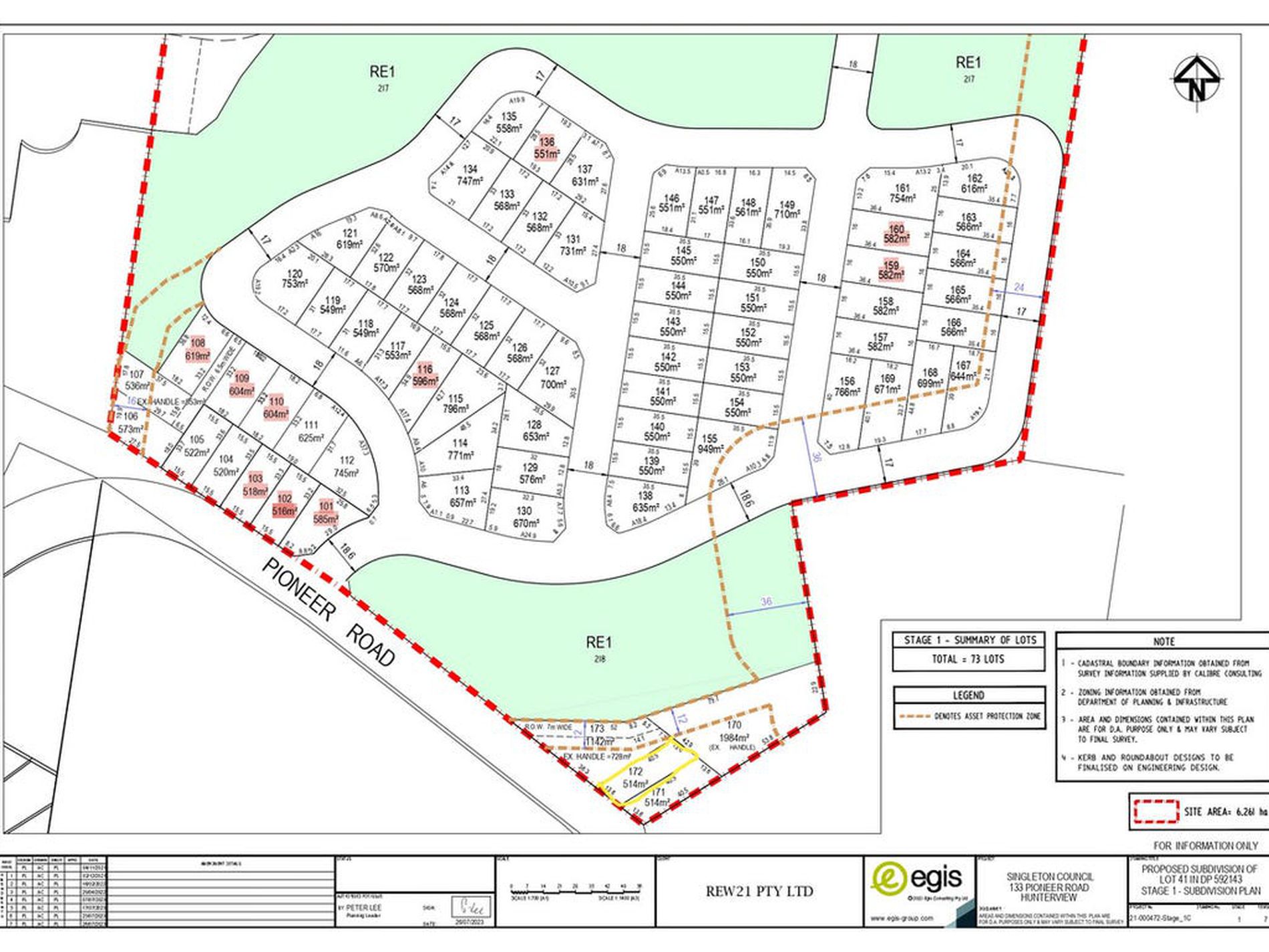
Lot 145, Premium 3+3 Duplex Investment Opportunity – Langham Estate, Hunterview NSW
Secure a high-performing investment or flexible lifestyle opportunity in the sought-after Langham Estate, a premium master-planned community located at 133 Pioneer Road, Hunterview (Singleton NSW).
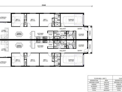
This modern 3+3 bedroom duplex offers dual income potential—ideal for investors looking to maximise returns, or owner-occupiers wanting to live in one residence while renting the other to help offset mortgage repayments.
With strata subdivision and council contributions already included, this is a hassle-free, turnkey investment—no extra time, effort, or hidden costs.
Key Features
2.7m high ceilings on the ground floor
Durable steel frame construction
Ducted air conditioning throughout
Powder-coated aluminium doors and windows
Stylish two-tone kitchen cabinetry
900mm electric appliances
Energy-efficient LED downlights
Hybrid timber flooring (living, kitchen & hallway)
Roller blinds to all living areas and bedrooms
Flyscreens on all openable windows
Colorbond roof
Fully rendered exterior with Hebel
Complete landscaping package included
Turnkey Advantage
✔ Full turnkey house & land package – nothing more to spend
✔ Two separate contracts (House & Land) – pay stamp duty on land only
Location Highlights – Hunterview / Singleton
Just 4–5 minutes to Singleton town centre
Easy access to schools, shops, healthcare & dining
Located in the beautiful Hunter Valley region
Disclaimer:
All building designs and pricing are estimates only and subject to change without notice. All drawings, pictures, house façade, fixtures and finishes in photos are for illustrative purposes only and should be used as a guide only. Blue Hill Real Estate and Blue Hill Advisors reserves the right to revise the plans and specifications without notice or obligation. All designs are subject to design panel and codes, council and authority approvals and formal builder quotation.
Features
- Air Conditioning
- Ducted Cooling
- Ducted Heating
- Fully Fenced
- Outdoor Entertainment Area
- Remote Garage
- Secure Parking
- Alarm System
- Broadband Internet Available
- Built-in Wardrobes
- Dishwasher
- Water Tank















